RÉFECTION DE L’EXTÉRIEUR, ESCUMINAC, QC
_____________________________________________________________________
RÉFECTION DE L’EXTÉRIEUR, BONAVENTURE, QC
_____________________________________________________________________
RÉFECTION DE L’EXTÉRIEUR, CAPLAN, QC
_____________________________________________________________________
AJOUT D’UN GARAGE ANNEXÉ, ST-NICOLAS, QC
_____________________________________________________________________
RÉFECTION DE L’EXTÉRIEUR, ST-SIMÉON, QC
_____________________________________________________________________
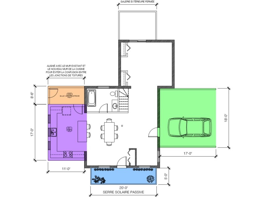
PLANIFICATION DE DIVERS AGRANDISSEMENTS PAR PHASE, ST-ELZÉAR, QC


